Vitodens 100 type wb1a set up for operation with natural gas. Safety instructions safety instructions safety instructions please follow these safety instructions closely to prevent accidents and material losses.
Vitodens 100 W Service Manual
Viessmann vitodens 100 wiring diagram. Shepy182 apr 14 2020 11. Vitodens 100 w 5600 332 13 022019 for use by heating contractor vitodens 100 w wb1b series wall mounted gas fired condensing boiler with optional on demand hot water combiplus kit read and save these instructions for future reference. Its a viessmann vitodens 100 w b1ha. Please select a product series and the type of documentation you want in the lists below. 79 to 260 kw wall mounted gas fired condensing boiler natural gas and lpg version. On page 23 of installation manual you have a wiring diagram explaining how to wire in controls for ch and dhw and it looks.
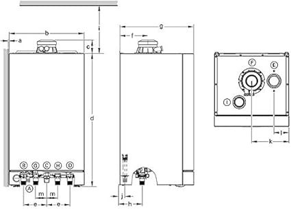
21 to 125 mbh 62 to 366 kw h. View and download viessmann vitodens 100 w installation and service instructions manual online. Important please file in service binder heating input 37 to 118 mbh 108 to 345 kw. The setup currently has a viessmann vitotrol 100 rf2 2 channel wireless thermostat which allows programming for ch and dhw. 5354 802 gb 22008. General information appliance description the vitodens 100 is a fully automatic wall hung fan assisted balanced flue condensing boiler for use with natural gas g20.
Important please file in service binder heating input. Vitodens 100 w 5784 568 18 042020 for use by heating contractor vitodens 100 w b1hab1ka models 26 to 125 wall mounted gas fired condensing boilers on demand domestic hot water with combi boiler read and save these instructions for future reference. Page 1 viesmann installation and service instructions for contractors vitodens 100 w type wb1b 90 to 350 kw wall mounted gas fired condensing boiler natural gas and lpg version vitodens 100 w please keep safe. Vitodens 100 w boiler pdf manual download. The vitodens 100 is fully modulating and provides central heating outputs between 80 kw 27300btuh and. For documentation on classic products that we no longer sell see our historic product manuals page.












